Furnished Campus Housing for Upperclass Students

University Commons is located on the southern part of the Marietta Campus between the R10 Housing Office and the gymnasium. The three-story apartment building offers spacious two and four-bedroom units for upper class students. Each apartment features a fully furnished kitchen and living area as well as a washer and dryer. 

Virtual Tours

Floor Plans

2 bedroom floor plan

2 Bedroom | 2 Bath

$4,783 per semester per person

Total units with this floor plan: 48

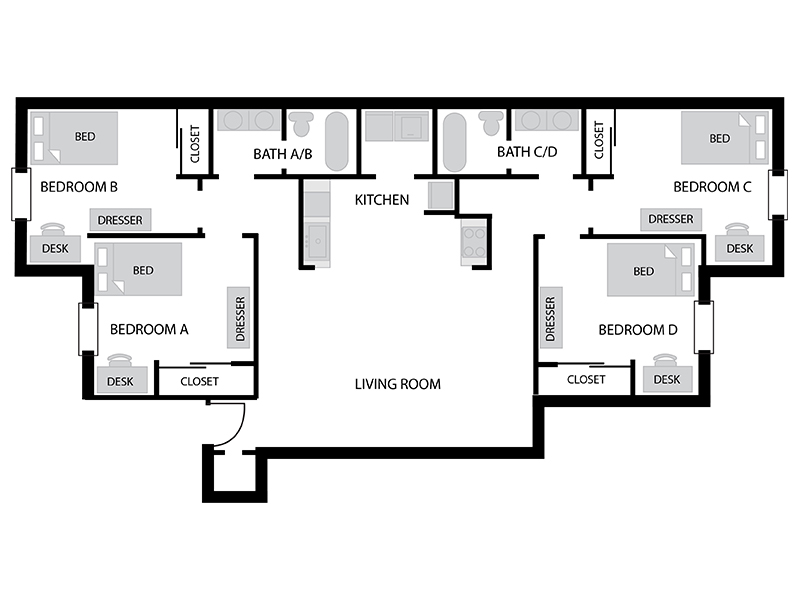
4 bedroom floor plan

4 Bedroom | 2 Bath

$4,361 per semester per person

Total units with this floor plan: 48

Amenities

Room

  • Private bedrooms
  • Full-size XL bed
  • Dresser
  • Computer desk and chair

Apartment

  • Private bathrooms in 2 bedroom units
  • Furnished kitchen with microwave, dishwasher, refrigerator and stove with range
  • Washer and dryer
  • Furnished living room with sofa, over-sized easy chair, coffee and end tables and entertainment center
  • Patio area for lounging
  • WiFi

Community

  • Convenient access to basketball and volleyball courts
  • Access to the apartment community center for studying and socializing
  • Marietta Campus Community Nest